Opholdsvogne og sovevogne

Sovevogn, 4 pers.

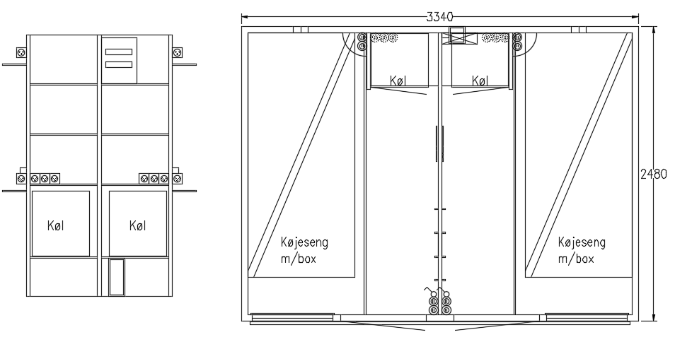
Sovevogn med to rum til fire personer.

Læs mere

Opholdsvogn

Meget fleksibel vogn beregnet til længere ophold og til dem, der har brug for ekstra plads og rigtig gode senge.

Læs mere

Sovehus

Lækkert sovehus med gulvvarme.

Læs mere

Bunker

Bunker med plads til 4 personer

Læs mere

Leje af beboelsesvogn

Står du og skal totalrenovere huset? Har du brug for en tryg og varm sovevogn til hele familien? En flygtig oase midt i byggerodet? Eller har du bare lyst til at forkæle håndværkerne med en dejlig lun overnatningsmulighed? I tider med midlertidige boligløsninger, hvor hverdagen ofte skifter som sandet i timeglasset, er der én konstant – hjemmet. Det er her, leje af beboelsesvogn kommer ind i billedet.

En fleksibel boligløsning

En beboelsesvogn, sovevogn, opholdsvogn – kært barn mange navne – er ikke bundet af de traditionelle konventioner for fast ejendom. De kan nemlig være din hjemlige hule under byggepladsens støvede himmel, din baselejr under et udendørs eventyr, eller din midlertidige bolig under en familieudflugt. Fra byggepladser til festivaler, fra filmproduktioner til militære missioner kan leje af beboelsesvogn opfylde ethvert krav og tilpasse sig enhver situation. Og har du brug for en flytbar løsning, kan vi også opfylde det.

Muligheder på hjul

Med en beboelsesvogn er verden lidt som din helt egen legeplads. Uanset placering eller geografi er du ikke længere bundet til kun et sted. Hos os kan du nemlig leje beboelsesvogne på hjul, så du nemt og bekvemt kan flytte til og fra adresser. Vi tilbyder både sovevogn på hjul med to rum til fire personer samt opholdsvogn på hjul med ekstra plads og gode senge.

Muligheder uden hjul

Er du ikke så tryg ved ideen om, at dit midlertidige hjem er flytbart, tilbyder vi også leje af beboelsesvogn uden hjul. Du kan nemlig leje et sovehus med gulvvarme til to personer, og har du brug for flere sengepladser, kan du leje en bunker med plads til fire personer.

Så uanset om du er på udkig efter en midlertidig bolig til en kortvarig begivenhed eller en langvarig løsning til en skiftende livsstil, kan leje af beboelsesvogn være den helt rette løsning og dit hjem væk fra hjemmet. Kontakt os i dag for at få mere information om leje af beboelsesvogn, priser og tilgængelighed. Vi har alt, hvad det kræver af udstyr for at afholde et event. Se blandt andet vores løsninger indenfor leje af toiletvogne.

Har du brug for hjælp?

Mangler du svar i forbindelse med vores produkter, eller har du en særlig forespørgsel, som du skal bruge vores ekspertise til?

Så skriv til os her, eller ring til os på tlf. 9619 8000.

Alt det du har brug for.

  • Betalingsløsninger
  • Netværksløsninger
  • Pladsbelysning
  • Generatorer
  • Stilladsbarer
  • Festivalhegn
  • Gængse hegnstyper
  • Scener

Gear Up Green A/S
Højmarken 12
7700 Thisted
96198000 / info@gearupgreen.dk

Sylbækvej 2
8220 Aarhus

Hammeren 8
6800 Varde

Roskilde
4000 Roskilde